徐州高新区征地公告,涉及17个地块!
2025年,徐州又会有哪些村子拆迁呢?我们一起来看看!
首先是春节前有网友咨询:高新区滕寨拆迁一年多了,安置房未见动工,听村里有人说安置房不盖了,重新选毕庄或者千禧城那边的安置房。想咨询一下这种说法是否真的,安置房还盖不盖?
对此相关部门回复:该问题正在商讨,待方案确定,将及时向征收对象进行公示。(2024.11.04)

另外,就在最近,徐州高新区还有一批地方发布征地公告,涉及17地!看看有你家附近吗?
1、铜山区新区街道
经批准,将位于铜山区新区街道的农民集体所有农用地5.6285公顷(耕地5.0235公顷)转为建设用地并征收为国有,同时将位于铜山区新区街道的农民集体所有建设用地0.2283公顷征收为国有。

以上共计批准建设用地5.8568公顷,其中转用农用地5.6285公顷,征收土地5.8568公顷。
2、滕寨村
拟征收地块1:涉及新区街道滕寨村,东至河堤,南至河堤,西至水面,北至厂房。

拟征收地块2:东至空地,南至空地,西至空地,北至田地。
拟征收地块3:涉及新区街道滕寨村。东至空地,南至空地,西至道路,北至空地。

拟征收地块4:涉及铜山区新区街道滕寨村。东至上水璟园,南至空地,西至空地,北至上水璟园。

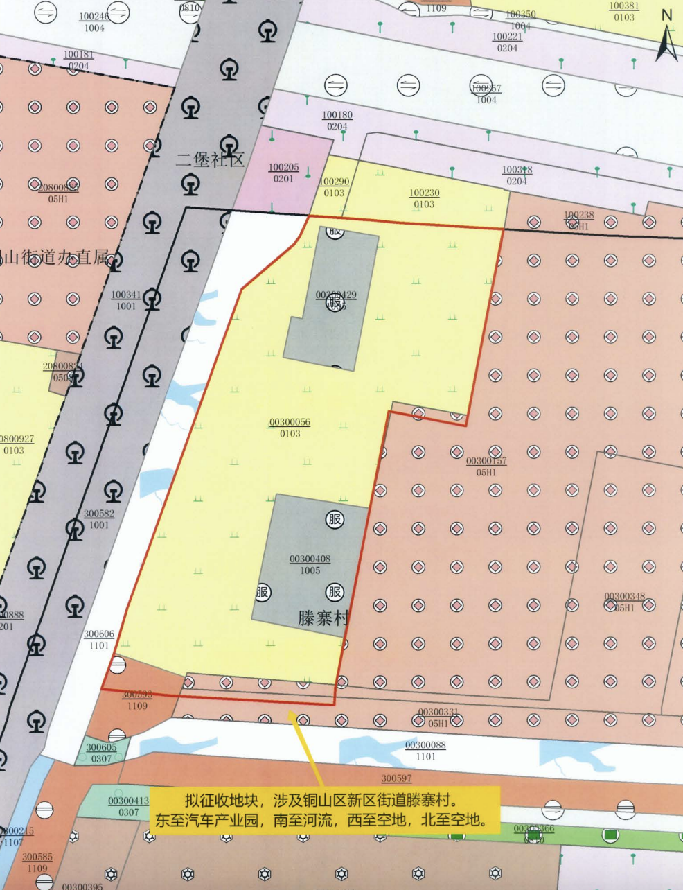
拟征收地块5:涉及铜山区新区街道滕寨村,东至汽车产业园,南至河流,西至空地,北至空地。

拟征收地块6:涉及铜山区新区街道滕寨村。北至庄体,西至庄体,南至庄体,东至庄体。
拟征收地块7:北至庄体,西至庄体,南至庄体,东至庄体。

拟征收地块8:涉及铜山区新区街道驿城村,东至长兴路,南至空地,西至空地,北至空地。

3、榆庄村
本次拟征收土地位于徐州市铜山区新区街道榆庄村,实际征收土地范围以最终批准文件为准。
拟征收地块1:涉及铜山区新区街道榆庄村。东至河流,南至五环路,西至空地,北至空地。

4、新庄村、滕寨村
拟征收地块1:涉及铜山区新区街道新庄村、滕寨村,西至林地,南要林撼,东至大棚,北至空地。
拟征收地块2:涉及铜山区新区街道新庄村、滕寨村,西至大棚,南至林地,北至空地,东至厂房,北至空地。

拟征收地块3:涉及铜山区新区街道新庄村、滕寨村。南至太康路,西至田地,北至田地,东至空地。

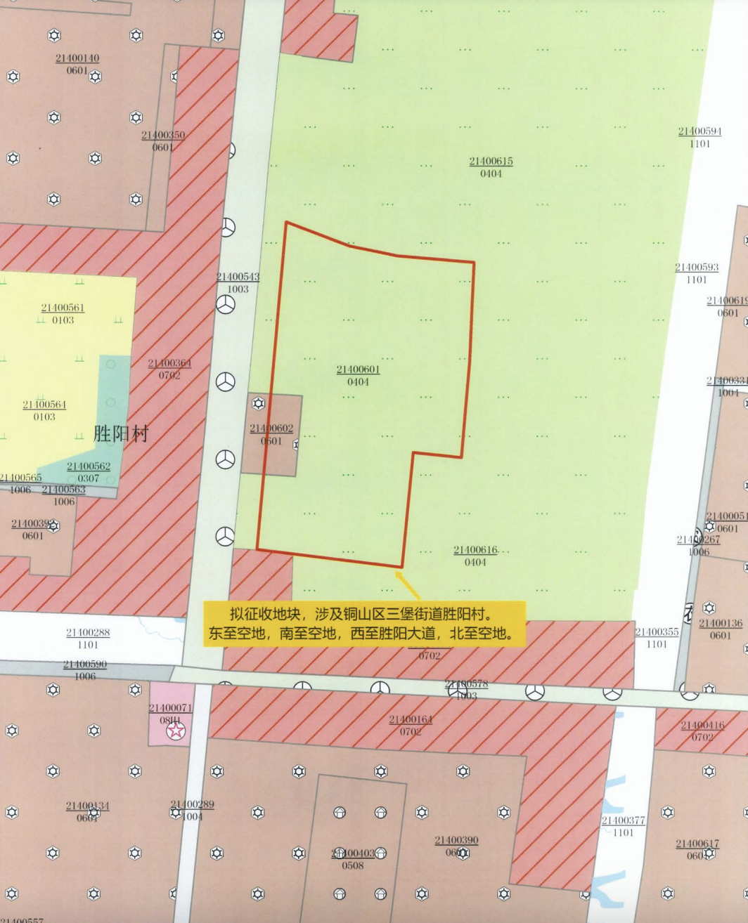
拟征收地块1:涉及铜山区三堡街道胜阳村。东至空地,南至空地,西至胜阳大道,北至空地。 拟征收地块3:涉及三堡街道胜阳村六组。东至田地,南至空地,西至空地,北至厂房。


- 徐州市公积金政策重大调整!夫妻最高可贷100万元
- 徐州信息网恭祝全市人民中秋快乐!
- 徐州市住房和城乡建设局某原副局长被判刑!
- 徐州驾校8月份合格率排名出炉!
- 铜山这些校外培训机构被查!
- 不调休!中秋节放假安排来了
- 徐州市常态化开放核酸采样点明细来了!
- 徐州主城区16所公办热门小学启动电脑派位!
- 徐州九顶山野生动物园 9月28日正式开园迎客!
- 徐州第3轮地铁规划
- 徐州又出新政,公积金偿还商贷细则来了!
- 汽车客运南站、汽车客运西站即将终止站务经营
- 2022年徐州最新最全买房、贷款、落户政策
- 移步换景!一起来看看彭城广场新面貌
- 核酸采样小屋,亮相徐州!
- 徐州市居民小区,开始集中整治!
- 徐州市全员核酸检测预约登记系统正式启用
- 被通知集中隔离应该做什么?
- “抄小道”,逃避防疫检查!被处罚!!!
- 徐州加油 坚持,必将胜利!!



